広島パルコ

【広島パルコ】MUJI Renovation Club施工事例の紹介|箱デコ

リノベーション施工事例の紹介

MUJI Support/インテリアアドバイザー

2021/06/23

こんにちは。広島パルコです。

MUJI Renovation Clubでは、地域のリノベーション会社さまと無印良品が連携し、住まいのお手伝いをします。
無印良品に限らず、❝リノベーション❞という家づくりの方法を通して、
日本のくらしや住まいの在り方を考え、実践していくための活動を行っています。

本日は広島市中区西十日市町を拠点に展開をされています、
株式会社ハウジングネットワン 箱デコさまのリノベーション事例をご紹介いたします。
・・・・・・・・・・・・・・・・・・・・・・・・・
リノベーション施工事例紹介 全体画像
見学会に来場され、物件探しからスタートしたのがはじまり。
希望エリア内で出合ったのは築34年ではあるものの、予算・立地条件をクリアしていた上、1階で専有庭もあったことから購入を決断されました。
賃貸住まいの頃は家族でくつろげるスペースが少なく、ご夫婦共通の趣味でもある洋服や靴などの収納場所にも困っていたそう。
リノベーションでは広いLDKやウォークインクローゼットの他に、1日に何度も洗濯する奥さまから洗面室を広げ室内干しできるスペースもご要望がございました。

物件周辺には高層マンションが多く、さらに室内は細かく仕切られていて南向きの1階にもかかわらず暗い印象でした。
ご要望も踏まえプランニングするにあたり、思い切って室内をスケルトン(躯体)状態に全解体し、暮らしに合わせた空間を新たに構成しました。
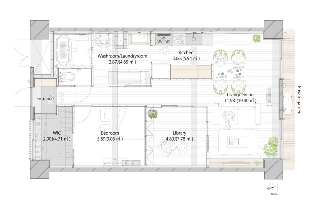
まずキッチンは南に移設し、約16帖となったLDKに個室としても仕切れる4.8帖の書斎を隣接することで開放感ある空間に。
キッチンから洗面・洗濯室~バスルームへ行き来できる動線を設け、家事も効率良く行えます。
また、ご要望だった衣類や靴の収納は玄関から土間続きのウォークインクローゼットを設け集中収納に。

Before
before図面

after
アフター図面
 
リノベーション前
キッチン・ダイニングが部屋の中心にあり、南側に個室2間が仕切られ日中も照明な必要なほどでした。
 
リノベーション前 スケルトン状態
ビフォーと同じ角度から撮影したスケルトン(躯体)状態の室内。
天井も解体し配管は見えますが、以前よりも天井高が高くなり開放感を感じられるように。
天井・壁は白く塗装しています。
 
リノベーション前 玄関
廊下から玄関を撮影。
 
リノベーション後 通路 玄関
無垢フローリングを張り、建具(ドア)も白で統一させ明るくなりました。
マンションの玄関ドアは共用部のため自身での取替はできませんが、室内側は占有部になるため塗装やシート張りが可能です。
 
リノベーション後 洗面スペース
大の洗濯好きで、1日に何度も洗濯するという奥さま。
室内干しもできるよう、洗面&洗濯室として約4帖のスペースを設けました。
洗面台は実験用シンクを埋め込んだ造作。
トグルスイッチやミラーのかたちにもこだわり、水まわりも好きに囲まれた空間に。
 
リノベーション後 洗面スペース
天井にはハンガーを掛けられるアイアンバーやタオルを収納する棚をあらかじめ設置し、使い勝手良く。
木製の折り畳み式物干しも奥さまのお気に入りアイテムで洗濯も気分良く行えます。
 
リノベーション後 ダイニング

リビングから高さ1.35~1.85mのモルタル壁を立ち上げ、生活感を感じさせる家電や冷蔵庫を目隠し。リノベーションを機に購入されたアンティーク家具が引き立ちます。

リノベーション後 窓
リノベーション後 窓

エアコンは生活必需品のため各個室に設けたいところですが、築年数によって全室に設置できない場合があります。
リビングと隣接した書斎は天井まで仕切らず通風できるよう工夫しました。
さらに寝室との間には造作したガラスの開閉窓を設け、採光も取れるように。空間に奥行きも生まれます。


■物件情報
建物種類:マンション
築年数:35年 ※リノベーション当時
間取変更:3DK→2LDK+WIC
施工箇所:全室
施工金額:約1200万
工事期間:2ヶ月
家族構成:夫婦、子ども

■リンク
株式会社ハウジングネットワン 箱デコさまHP
MUJI Renovation Club HP
過去の事例紹介はこちらから

無印良品広島パルコでは、地域のリノベーション会社の紹介をおこなっております。
リノベーションに興味があるけど何から調べてよいか分からない、どこに相談してよいか分からない、
という方はぜひお気軽にお問い合わせくださいませ。


無印良品広島パルコ