近鉄四日市

【近鉄四日市】ホシダンvol.6 ~団地の新しいカタチ~ | インテリアアドバイザー

ホシダン 表紙

MUJI Support/インテリアアドバイザー

2020/04/06

こんにちは。インテリアアドバイザーの泉です。

ホシダン連載、本日のお話は・・・

あさけが丘のスターハウス型団地のリノベーションプランのお話の続きです。
2部屋あるうちのもう一部屋のプランです。

このお部屋は、そのまま使っても問題ないほどの状態ではありましたが、無印良品らしく空間を変えていきます。
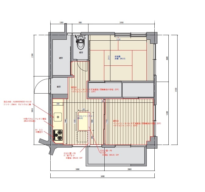
リノベーション後の図面です。

キッチンとダイニングはL字の壁で間仕切ります。
L字の壁ですので、完全に仕切られていないから、広々とした感じになります。

そして、キッチンですが、前回のステンレス素材ではなく、木製のキッチンにしました。
木の風合いが感じよい空間に仕上げていきます。
キッチンカウンターも造作して、カウンターの中には無印良品のロングセラー商品の
ユニットシェルフを入れ込みます。
図面

そして床材です。クッションフロアだった空間には、すぎ無垢材(無塗装)のタイルを敷き詰めます。
すぎのあたたかさや柔らかさが気持ちの良い床材です。
あえて無塗装にして、みんなでオイルを塗ります。

そして和室は、やっぱり無印良品の麻畳。
よくあるイ草の畳は、新しいうちは香りもよいし、色もきれいでよいのですが、日がたつごとにそれがなくなってきますよね。
麻畳は、気持ちよさがずっと続きます。
そして、丈夫だから家具も置ける。とてもおすすめです。
イ草から麻畳に変えるだけでお部屋の雰囲気はかなり変わります。
麻畳
麻畳をご覧になりたい方は、ぜひ無印良品近鉄四日市にご来店ください。
サンプルがございます。
また、手軽にフローリングの上に置くだけのユニット麻畳もございます。
詳しい価格や仕様は、インテリアアドバイザーの泉までお問い合わせください。

こちらの部屋は、キッチンが大きいから、みんなでお料理して集える空間になればいいですね。
イメージはこんな感じです。
イメージ図


今日はここまで。
また、次回の連載をお楽しみに。
四日市