広島アルパーク

【広島アルパーク】MUJI Renovation Club施工事例の紹介|箱デコ

施工事例紹介|箱デコさま

MUJI Support/インテリアアドバイザー

2022/10/26

こんにちは。
無印良品広島アルパーク リフォーム担当です。
MUJI Renovation Clubとは、「感じ良い暮らしと社会の実現」を標榜する無印良品の理念に共感いただき、共にクリエイティブな空間を社会に提供する企業のことです。

広島県では長年広島で感じ良いくらしを提供している6社のリノベーション会社にご参画いただき、❝リノベーション❞❝リフォーム❞という家づくりの方法を通して、日本のくらしや住まいの在り方を考え、実践していくための活動を行っています。
 
本日は広島市中区西十日市町を拠点に展開をされています、
株式会社ハウジングネットワン 箱デコさまのリノベーション事例をご紹介いたします。
・・・・・・・・・・・・・・・・・・・・・・・・・
施工事例紹介|箱デコさま
箱デコの相談会にお越しいただいたことがきっかけです。当初より中古マンションを購入し、
暮らしに合わせて変えられるリノベーションを要望されておりました。
立地や利便性も考慮された結果、無事に物件に巡り合われ、リノベーションがスタートいたしました。
施工事例紹介|箱デコさま
施工事例紹介|箱デコさま
施工事例紹介|箱デコさま
LD横にあった和室は使用されないとのことでLDに取り込み、十分な広さを確保いたしました。
元の和室は将来のお子さまのために、開放的なスペースとして生まれ変わりました。
大きく開口を取ることにより、LDとの一体感が生まれました。
施工事例紹介|箱デコさま
施工事例紹介|箱デコさま
施工事例紹介|箱デコさま
もともとの洗面の位置を移動し、キッチンからと廊下からとLDからの3WAYを実現いたしました。
洗面はあえて扉をつけず、来客があった際もプライベートスペースは隠しつつ、
気軽に利用してもらえるようにいたしました。
床材は人にも環境にも心地よい素材を選ばれたいとのことで、水回りにも適したサスティナブルな床材を選択されました。
広さも確保し、オーダーの洗面化粧台が映える空間となりました。
 
施工事例紹介|箱デコさま
施工事例紹介|箱デコさま
施工事例紹介|箱デコさま
施工事例紹介|箱デコさま
お施主さまが一番こだわられたワークスペースです。
デスクは微妙なサイズ感を細かく調整しながらすべてオーダーで製作。
見えるところはラワン材を、見えないところは化粧合板を使用しています。
デスク上にはパソコンが置けるように、コンセントとUSBを設置。配線も裏側で処理しているので
見た目すっきりとしました。
お手持ちの本などが見事にシンデレラフィットした、ワークスペースとなりました。
 
施工事例紹介|箱デコさま
施工事例紹介|箱デコさま
ワークスペースの横に作った大容量のWICです。廊下からはあえて扉をつけず、
スムーズに出入りできるようにいたしました。
またワークスペースと繋がっているため、自然とリモートワークのご主人との会話も増え、スムーズな回遊動線となりました。
 
施工事例紹介|箱デコさま
施工事例紹介|箱デコさま
施工事例紹介|箱デコさま
お料理好きの奥さまの要望で収納力のあるキッチンや背面のカップボードを選ばれました。
また手元を隠すことで、来客時も汚れなど気にすることもなく、快適なキッチンスペースとなります。
リビング側にはこれまた大容量の収納をオーダーで製作いたしました。
 
施工事例紹介|箱デコさま
 
施工事例紹介|箱デコさま
洋室を2つの用途に分けました。

BEFORE
施工事例紹介|箱デコさま

AFTER
施工事例紹介|箱デコさま


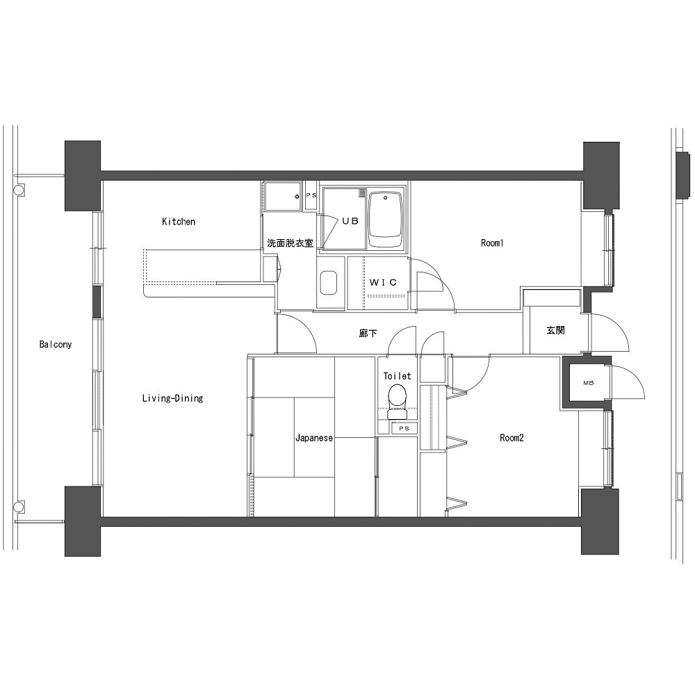
■物件情報
建物種類:マンション
築年数:17年
間取変更:3LDK→1LDK+フリールーム+DEN+WIC
施工箇所:LDK、玄関、洗面、主寝室、洋室、ワークスペース、WIC
工事期間:2ヶ月
家族構成:夫婦

■リンク
株式会社ハウジングネットワン 箱デコさまHP
過去の事例紹介はこちらから

無印良品広島アルパークでは地域のリノベーション会社の紹介をおこなっております。
リノベーションに興味があるけど何から調べてよいか分からない、どこに相談してよいか分からない、
という方はぜひお気軽にお問い合わせくださいませ。


無印良品広島アルパーク